• ← Retour
  • P7_OBSOLESCENCE ET PÉRENNITÉ

    - 2024

    - ENSAPM - Nicolas Busch

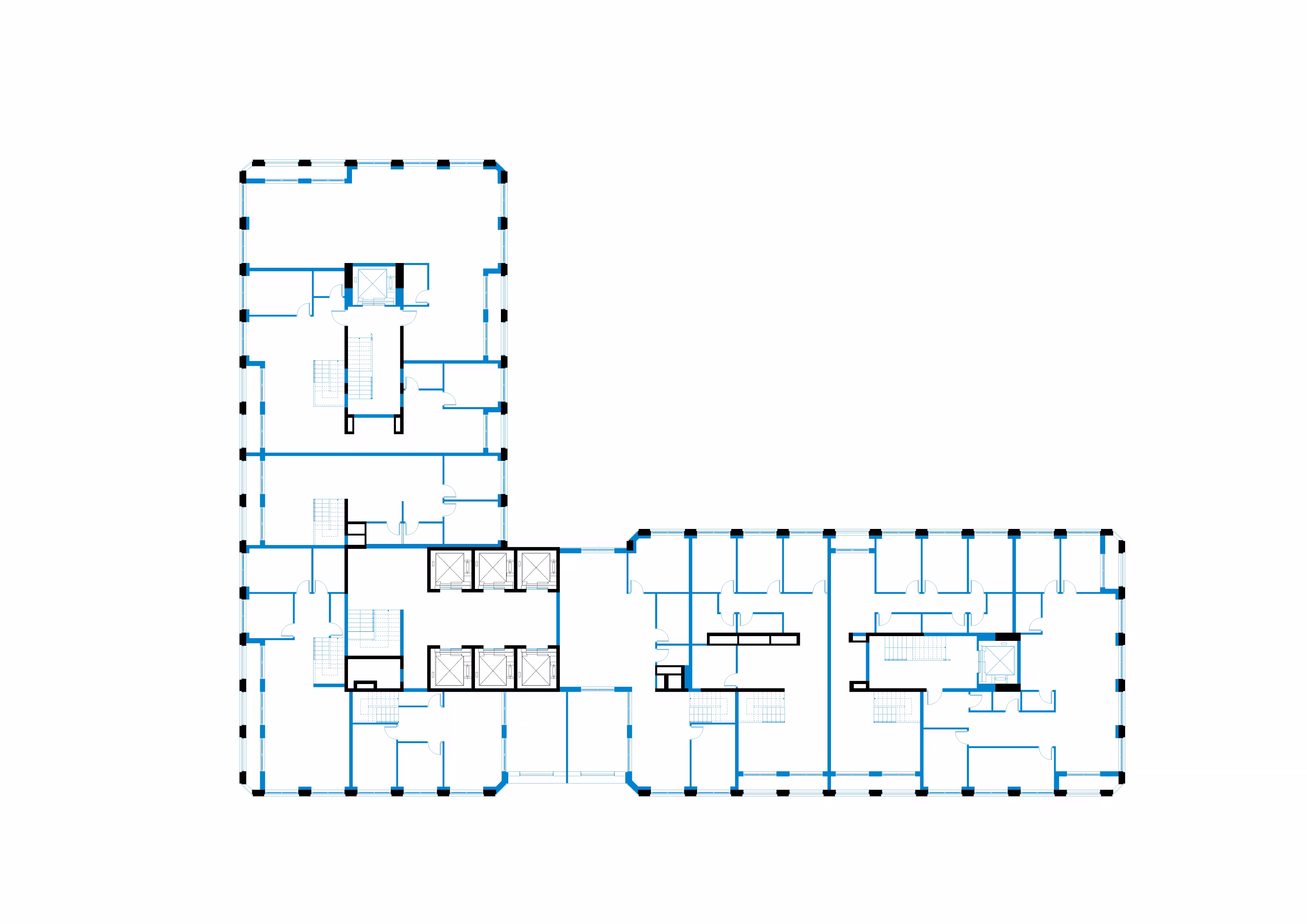
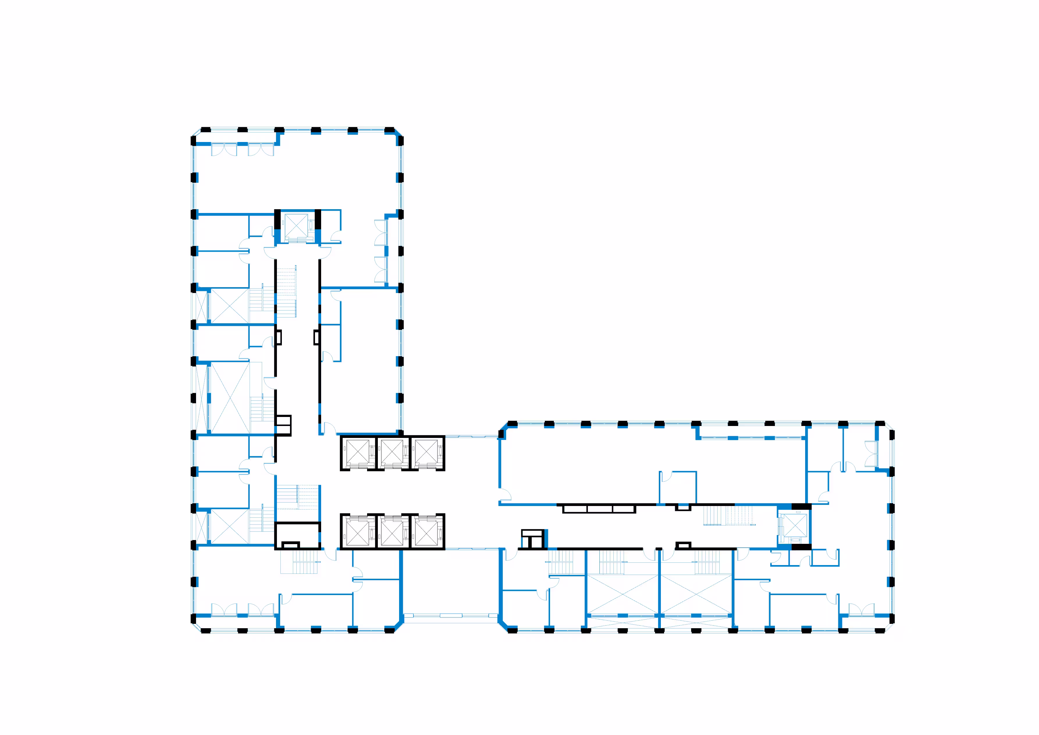
    Projet de transformation d'une tour de bureaux au quai de la Rapée en un programme mixte comprenant des espaces publics, des logements et des bureaux. La réflexion autour de ce projet s'articule sur les questions d'obsolescence et de pérennité de l'architecture contemporaine, en visant à y répondre par une idée simple : la création d'un jardin bas, un nouvel espace public isolé du reste de la ville. Ce nouveau "creux" est en réalité un vide préexistant, celui de quatre étages de parking, qui est révélé par la destruction des dalles.